Edificio 84 viviendas para INVERSIONES CANTO REDONDO S.L.
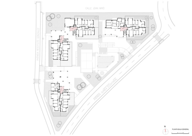
Edificio de 84 viviendas con garaje, piscina y zonas deportivas. Viviendas de tres y cuatro dormitorios con terraza. Distribución en parcela en cuatro portales independientes. Parcela P60 del Plan Parcial «El Bercial-Universidad» de Getafe, MADRID. Año 2019.
Proyecto y Dirección de Obra integral.















